Maison - vendu - 4100 Seraing

Maison - à vendre - 4100 Seraing
4 2 165 m² PEB : E

Description

VENDU
Antoine Immo a le plaisir de vous présenter cette spacieuse maison bel-étage située dans une rue paisible de Seraing.
Description :
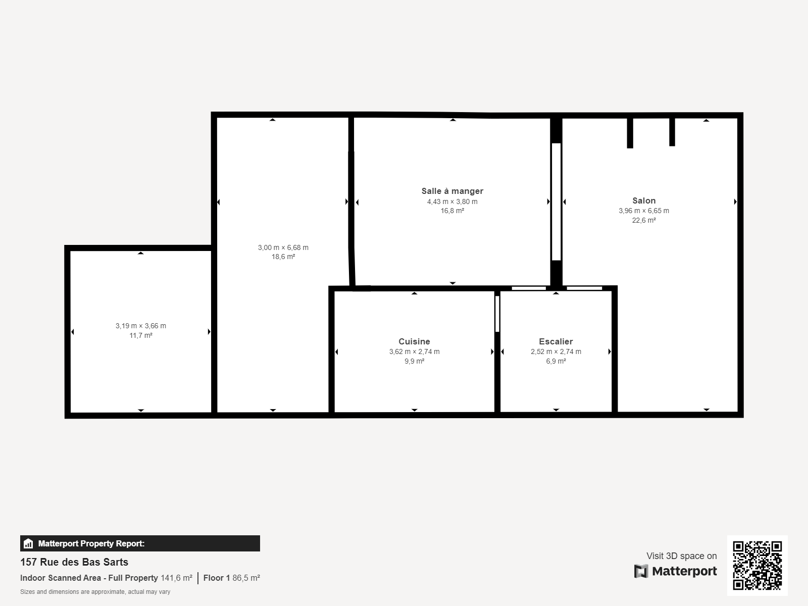
Rez-de-chaussée : Un hall d'entrée accueillant, un garage avec un espace de rangement à l'arrière, ainsi qu'une petite salle de bain.
Premier étage : Un grand salon baigné de lumière, une salle à manger, et une spacieuse salle de séjour offrant un accès direct à la cuisine et au jardin.
Deuxième étage : Une salle de bain, trois chambres, dont une chambre passante donnant accès au troisième étage et à une grande chambre.
Troisième étage : Une grande chambre de 30 m².
Divers : Chauffage central mazout, châssis double vitrage en bois (à l'avant), châssis simple vitrage en bois à l'arrière, élec non conforme. PEB: E. 390 kWh/m².an
Renseignements et visites: Kevin Thône 0460.97.43.21

Adresse :

Rue des Bas-Sarts 157 - 4100 Seraing

Documents

Général

Référence 6771340
Catégorie Maison
Nombre de chambres 4
Nombre de salles de bain 2
Surface habitable 165 m²
Surface du terrain 180 m²

Equipement de base

Cuisine Oui

En chiffres

Chambre 1 (surface) 16 m²
Chambre 2 (surface) 15 m²
Chambre 3 (surface) 7.400000095367432 m²
Chambre 4 (surface) 32 m²
Cuisine (surface) 9.300000190734863 m²
Salle de bain 1 (surface) 8.300000190734863 m²

Charges & Rendement

Sous régime TVA Non

Certificats énergétiques

Label PEB (Classe) E
PEB E-SPEC (kwh/m²/an) (Consommation énergétique) 390
PEB code unique (-) 20231108028801
Prendre contact pour le bien : 6771340

* Champs obligatoires

Sélection des points d'intérêts
Préférences pour les cookies

La protection de vos données personnelles est importante pour nous. C’est pourquoi nous détaillons ci-dessous les différents services et fonctionnalités du site qui utilisent des cookies et nous vous laissons décider des cookies que vous souhaitez autoriser ou refuser.

Veuillez cependant noter que si vous bloquez certains types de cookies, cela pourrait impacter votre expérience de navigation sur notre site ainsi que les fonctionnalités disponibles.

Nous utilisons des cookies fonctionnels obligatoires pour assurer le bon fonctionnement du site. Ils sont, par exemple, nécessaires pour retrouver le résultat d’une recherche ou enregistrer le choix de la langue.

Certaines fonctionnalités, comme l’affichage de vidéos ou de cartes géographiques, sont assurées via des composants externes développés par des partenaires comme YouTube ou Google. Certains composants utilisent des cookies qui sont susceptibles de permettre à ces tiers de suivre le comportement des internautes afin, par exemple, de réaliser du ciblage publicitaire. L’activation de ces fonctionnalités et des cookies associés est donc soumis à votre consentement.