
VENDU
Antoineimmo vous propose cette superbe villa 4 façades érigée en 2015 dans le très prisé village de Limont. Située sur une parcelle de 1 098 m², cette maison offre 150 m² habitables et un cadre de vie paisible avec une vue imprenable sur la campagne environnante.
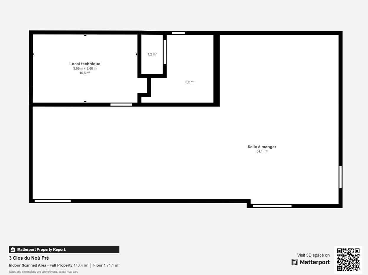
Rez-de-chaussée : un hall d’entrée spacieux, un WC indépendant, un grand séjour lumineux, une salle à manger ouverte sur une cuisine équipée moderne et une buanderie.
1er étage : un hall de nuit, trois chambres, dont une avec un dressing attenant et une salle de bains.
Extérieur : profitez d’un jardin parfaitement exposé au sud-ouest de 770 m² et d’une terrasse de 60 m².
Divers : électricité conforme, 20 panneaux photovoltaïques (installés en 2023), système d’aération double flux, alarme, microstation d’épuration, citerne à eau de pluie, chauffage par pompe à chaleur, PEB B (125 kWh/m²/an).
Pour plus de renseignements ou pour planifier une visite, contactez Kevin Thône au 0460.97.43.21. et Maëliss Lincé au 0470/54.72.40.
Adresse :
Clos du Noû Pré 3 - 4160 Anthisnes
Référence | 6771464 |
---|---|
Catégorie | Maison |
Nombre de chambres | 3 |
Nombre de salles de bain | 1 |
Surface habitable | 150 m² |
Surface du terrain | 1098 m² |
Année de construction | 2015 |
---|
Cuisine | Oui |
---|---|
Double vitrage | Oui |
Type de cuisine | équipée |
Nbre de toilette(s) (nombre) | 1 |
---|---|
Chambre 1 (surface) | 12.5 m² |
Chambre 2 (surface) | 13 m² |
Chambre 3 (surface) | 21 m² |
Salle de bain 1 (surface) | 6.5 m² |
Certificat d'électricité (oui/non) | oui, conforme |
---|
PEB E-SPEC (kwh/m²/an) | 125 |
---|---|
PEB code unique | 20161027502889 |