
Antoine immobilier vous propose ce superbe terrain à bâtir à Wéris (Durbuy), l'un des plus beaux villages de Wallonie. Ce terrain d'une superficie de 667m² vous séduira par son environnement calme et boisé. Eau et électricité disponibles à rue. Libre de constructeur. Prescriptions urbanistiques disponibles sur demande. Rens. et visites: julian@antoineimmo.be - 0471/67.44.61 - teo.mathieu@antoineimmo.be - 0471/86.69.51
Adresse :
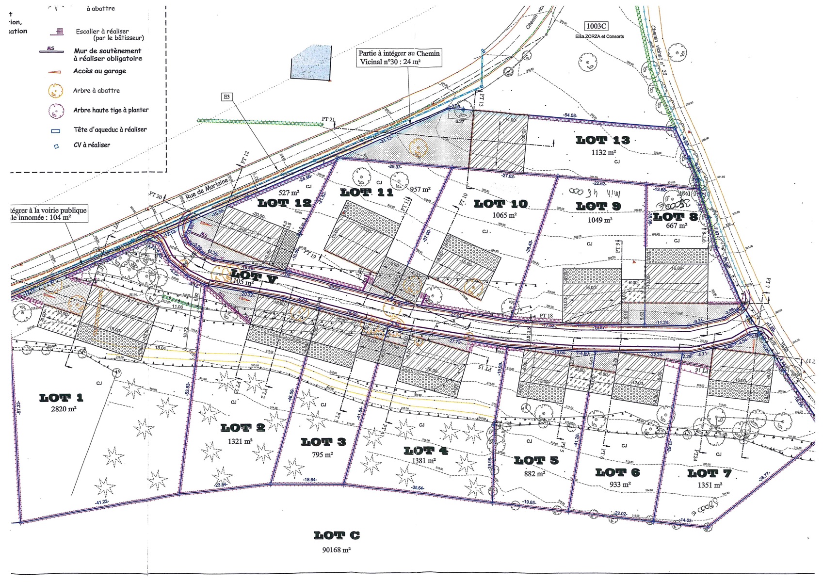
rue de la Marlaine 9 - 6940 Durbuy
Référence | 6771280 |
---|---|
Catégorie | Terrain à bâtir |
Surface du terrain | 667 m² |
Disponibilité | à l'acte |
Égouts | Non |
---|---|
Électricité | Oui |
Eau | Oui |
Type d'environnement | calme |
---|---|
Type d'environnement 2 | campagne |
Risque d'inondation (type innondation) | pas situé en zone inondable |